ノーブルガーデン六ツ野7期
区画整理進行中の新しい街並み
所在地
交通
JR常磐線「勝田駅」まで約2,800~約2,850(車で7分~8分)※実測による
小学校 /
中学校
外野小学校/大島中学校
販売価格
3,290万円
販売棟数
2棟
総区画数
5区画
-
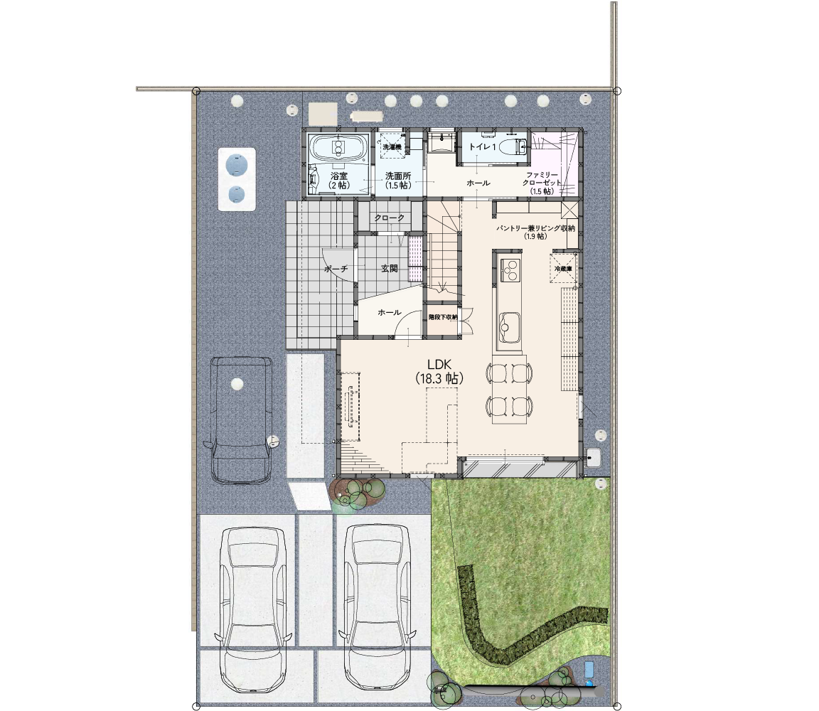
区画図・
間取り -
周辺環境
-
地図
-
物件概要

周辺環境
-
外野小学校
約750m~約800m(徒歩10分)
-
大島中学校
約1,200m~約1,250m(徒歩15分~16分)
-
カスミフードスクエアひたちなか笹野店
約1,600m~約1,650m(徒歩20分~21分)
-
ウエルシアひたちなか六ツ野店
約1,000m~約1,050m(徒歩13分~14分)
-
クスリのアオキ高場店
約650m~約700m (徒歩9分)
-
ますおか内科クリニック
約750m~約800m (徒歩10分)
-
ヒロ歯科クリニック
約850m~約900m (徒歩11分~12分)

地図

物件概要
所在地
交通
JR常磐線「勝田駅」まで約2,800~約2,850(車で7分~8分)※実測による
販売価格
3,290万円
土地面積
182m²(55.05坪)
建物面積
111.16m²(33.62坪)
学区
外野小学校/大島中学校
総区画数
5区画
販売棟数
2棟
地目
畑・山林
用途地域
第一種住居地域
都市計画
市街化区域
道路
公道 約6m~約16m
建ぺい率
60%
容積率
200%
設備
公営水道・東京電力・個別プロパン・合併浄化槽
取引形態
売主
権利(土地権利)
所有権
施工・設計会社名
株式会社ノーブルホーム
その他特記事項
※農地転用を要します。
※地区計画あり
※令和8年度 公共下水整備予定
※図面と現況が異なる場合には、現況優先となります。
最終更新日
2025年10月1日
物件のご来場・お問い合わせ
ノーブルガーデン六ツ野7期 No.3
お電話でのお問い合わせご相談はこちら