鹿嶋市平井東1丁目
所在地
交通
「鹿島神宮」駅まで6100m~6200m 車で16分~17分
小学校 /
中学校
平井小学校/平井中学校
販売価格
2,780万円
販売棟数
1棟
総区画数
1区画
-
区画図・
間取り -
周辺環境
-
地図
-
物件概要

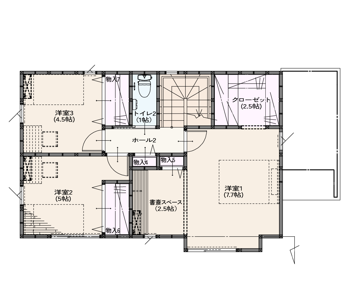
区画図・間取り
鹿嶋市平井東1丁目 No.1
販売価格
2,780万円(税込)
この物件の
ポイント
【家事ラクな水回り動線 ゆとりある暮らしを実現】
1.子どもが小さいうちは料理をしている時に何をしているか確認することができて安心。
2.リビングを通って2階に行く動線にすることで、家族の存在をより身近に感じることができます。
3.自宅でも家族を気にせず仕事や趣味に没頭できる、こもれるこもれる書斎スペース。
4.収納を設計する上で、重要なのは『適材適所』。玄関クロークやクローゼットなど、生活動線上に配置。

間取り
3LDK
土地面積
268m²(81.07坪)
建物面積
101.33m²(30.65坪)
構造
木造2階建て(在来工法)
現況
建築中
建物
完成時期
2026年1月
引渡し可能日
相談
建築確認番号
第2025CAー0435H号


周辺環境
-
鹿嶋市立平井小学校
約1,800m(徒歩23分)
-
鹿嶋市立平井中学校
約1,500m(徒歩19分)
-
三笠幼稚園
約2,700m(徒歩34分)
-
ウェルシア鹿嶋平井店
約1,800m(徒歩23分)
-
鹿島病院
約600m(徒歩8分)
-
三笠小児クリニック
約4,000m(徒歩51分)
-
鹿島線鹿島神宮駅
約4,400m(徒歩56分)
-
美空野保育園
約2,500m(徒歩32分)
-
イオン鹿嶋店
約2,700m(徒歩34分)

地図

物件概要
所在地
交通
「鹿島神宮」駅まで6100m~6200m 車で16分~17分
販売価格
2,780万円
土地面積
268m²(81.07坪)
建物面積
101.33m²(30.65坪)
学区
平井小学校/平井中学校
総区画数
1区画
販売棟数
1棟
地目
雑種地
用途地域
第2種中高層住居専用地域
都市計画
市街化区域
道路
公道 6m 間口 11.78m
建ぺい率
60%
容積率
200%
設備
公営水道・公共下水・集中プロパン・東京電力
取引形態
売主
権利(土地権利)
所有権
施工・設計会社名
株式会社ノーブルホーム
その他特記事項
※図面と現状が異なる場合は、現状が優先となります。
最終更新日
2025年10月15日
物件のご来場・お問い合わせ
鹿嶋市平井東1丁目 No.1
お電話でのお問い合わせご相談はこちら